logo
  • Accueil(current)
  • Expertises
  • Missions
  • Thermie
  • Environnement
  • Économie
  • Énergie
  • VRD
  • Contact
  • TECHNARUELF

    TECHNARUELF est un programmiste-conseil en bâtiment au service de Maîtres d’Ouvrage : Association type loi 1901, particuliers et de toute entité publique non assujettie à la TVA et recherchant l’accompagnement d’une micro-entreprise avec une ambition environnementale.
    AMO spécialisée en HQE*, TECHNARUELF est membre d’un réseau de bureaux d’études pluridisciplinaires répondant à l’ingénierie nécessaire à la construction et à la réhabilitation de bâtiment.
    Nous travaillons aux côtés d’architectes et d’AMO à la définition de projet avant la désignation d’une maîtrise d’œuvre et/ou à la réalisation de missions d’ingénierie telles que :

    ✅ Audit énergétique pour faisabilité et bouquet de travaux en réhabilitation
    ✅ Diagnostic général avant travaux de réhabilitation
    ✅ Dessin de plans et modélisation de maquette 3D
    ✅ Établissement de bilan de montage financier d’opération « Toutes Dépenses Confondues »
    ✅ Économie de la construction de projet
    ✅ Solutions de construction durable avec matériaux biosourcés et structure bois éco-conçue>
    ✅ Études techniques (thermie, ACV CO2, énergétique, équipements techniques, électricité, chauffage, plomberie…)
    ✅ Certifications environnementales, *Haute Qualité Environnementale Bâtiment Durable
    ✅ Aide à la préparation de dossiers d’aides financières type FEDER…

    S’appuyant sur quarante années d’expérience, TECHNARUELF propose des missions économiques à la portée de clients recherchant conseil et solutions à budget contraint.

  • BIOCLIMATISME FACE AU CHANGEMENT CLIMATIQUE

    Bioclimatisme

    La conception bioclimatique commence dès la recherche foncière, dès le programme, et les premières orientations du bâtiment projeté, dès les premiers traits de concepteur. Découvrir la Thermie↗

    CONSEIL EN CONSTRUCTION BOIS

    Bioclimatisme

    Avec les seuils de matériaux biosourcés exigés par les réglementations environnementales et les labels biosourcés biogéniques, la participation de la structure bois s’impose. Accéder au recrutement ↗

    CONCEPTION TECHNIQUE DES FLUIDES
    (Electricité, CVC, Plomberie, Désenfumage, EnR)

    Conception fluides

    Nous étudions l’approvisionnement énergétique de l’opération en analysant les opportunités du site : chauffage urbain, géothermie, biomasse, photovoltaïque… Découvrir les Fluides↗

    AUDIT ET ETUDES THERMIQUES (Réhabilitations)

    Audit thermique

    Nos outils d’études et de simulation du climat futur nous permettent d’anticiper les futurs besoins depuis la RE 2020 et ses différents seuils jusqu’au niveau Passivhaus.

    INGÉNIERIE ENVIRONNEMENTALE ET ÉNERGIES BAS CARBONE

    Ingénierie

    Application des certifications de la réglementation environnementale en matière de carbone, de gestion de l’énergie (décret B.A.C.S) et de réemploi des matériaux (décret P.E.M.D). Découvrir l'Ingénierie environnementale↗

    ACCOMPAGNEMENT JURIDIQUE ET TECHNIQUE DES MARCHÉS PUBLICS, BILAN ÉCONOMIQUE ET FINANCIER

    Juridique

    Selon le code des marchés publics et les recommandations du pouvoir adjudicataire, il s’agit pour notre économiste de respecter les budgets d’investissement... Découvrir l'économie de la construction↗

    CERTIFICATIONS, LABELS ET VALORISATION

    Certifications

    Application des certifications des référentiels de Haute Qualité Environnementale au-delà de la réglementation en observant différentes obligations : HQE, BREEAM, BDF, FEDER…

    VRD: Voirie Réseaux Divers (Aménagements Extérieurs)

    Études VRD – Voirie et réseaux divers pour aménagements extérieurs

    Études, conception et accompagnement dans la réalisation des travaux de voirie, réseaux divers et aménagements extérieurs, en intégrant les contraintes techniques et environnementales. Découvrir la VRD↗

  • Thermie

    Qu'est-ce que la bio-conception de l'enveloppe et des systèmes ?

    En tant que Bureau d'Études, Technaruelf participe à la conception de l'enveloppe et des systèmes afin d'orienter les choix architecturaux et techniques vers des solutions passives (Réglementaires 2020) BEPOS (Bâtiment à Énergie Positive).

    Image Exemple

    Nos Solutions:

    Image Exemple

    Exemple de bio-conception d'un bâtiment tertiaire : Bureaux / Ateliers / Stockage

    Éclairement Zénithal
    Brise-soleil sur fenêtre de toit
    Ventilation naturelle assistée
    Façade bioclimatique / pariétodynamique
    Rafraîchissement par évapotranspiration
    Centrale de Traitement d'air / filtration
    Déstratification d'air chaud / grande hauteur
  • Matériaux Biosourcés / Géolocalisés

    Les matériaux « biosourcés » sont des matériaux d’origine végétale. Il s’agit notamment du bois éco géré et de ses dérivés, du lin, du chanvre et de la paille, issus de l’agriculture.

    Ils présentent trois atouts environnementaux principaux :

    • La matière est renouvelable

    • Ils contribuent à la réduction des émissions de gaz à effet de serre et au stockage temporaire de carbone

    • Ils offrent une meilleure régulation de l’humidité intérieure

    Bâtiment BEPOS en matériaux biosourcés - construction durable
    Maquette des bureaux MSA à Boves

    Depuis le 1er septembre 2024, le nouveau label Bâtiment Biosourcé évalue l'impact environnemental en se basant sur la quantité de carbone biogénique :

    • La matière est renouvelable

    • Ils contribuent à la réduction des émissions de gaz à effet de serre et au stockage temporaire de carbone

    • Ils offrent une meilleure régulation de l’humidité intérieure

    Usages Quantité de carbone biogénique stocké par unité de surface pour atteindre
    les niveaux du label "Bâtiment biosourcé" (kg de carbone/m² de surface de référence)
    Niveau 1 : 2024 Niveau 2 : 2024 Niveau 3 : 2024
    Habitation 15 25 45
    Industriel - Stockage transport 4 6 9
    Tertiaire et autres 12 20 36
  • Économie de la construction

    À toutes les phases, APS, APD, PRO, ACT, VISA, l’économiste prends en compte l'investissement et l’exploitation durant la vie du bâtiment.

    Quelques références

    2024 : Saint-Saens - Audits
    2023 : Amiens - AMO - Aparadis
    2023 : Ymare - Maison Individuelle
    2023 : Mont Gargan - Rouen - Etudes Thermiques

    Études d'exploitation et Maintenance

    Ne s’arrêtant pas au coût d’investissement seul, le coût global comprend la totalité des coûts engendrés par l’exploitation et la maintenance du bâtiment : entretien, gros entretien et renouvellement, énergies…

    Retour sur investissement :

    Coûts opération
    Coûts pour une opération type
    Courbe retour
    Courbe de retour sur investissement
  • Energie

    Technaruelf accompagne vos projets sur l'ensemble des compétences suivantes :
    Biomasse / Bioénergies
    Récupération de chaleur sur eaux grises
    Éoliennes urbaines
    Rafraîchissement adiabatique
    Réseaux de chaleur inter-bâtiments
    Pompes à chaleur, géothermie
    Mur trombe
    Solaire (thermique / Photovoltaïque / Hybride)
    Sécurité incendie : Désenfumage, RIA et Sprinklers
    Électricité (Courants forts / Courants faibles)
    VRD (Voirie et Réseaux Divers)
    GTB (Gestion Technique du Bâtiment)

    En tant que Bureau d'Études, Technaruelf participe à la conception de l'enveloppe et des systèmes afin d'orienter les choix architecturaux et techniques vers des solutions passives (Réglementaires 2020) BEPOS (Bâtiment à Énergie Positive).

  • Voirie Réseaux Divers (VRD)

    Notre bureau d’étude Technaruelf réalise des études de conception VRD sur des projets de toutes natures suivant les besoins de nos clients.
    Nous accordons la plus grande importance à la démarche HQE ainsi qu’au respect des normes et réglementations, afin que chaque projet intègre la notion du respect du paysage urbain, la sécurité des usagers, la qualité du cadre de vie et l’environnement.
    Nous accordons également la plus grande importance au respect du projet, des choix architecturaux.
    Notre savoir-faire s’étend notamment à plusieurs domaines :
    Les aménagements urbains (publics) : voirie, parking, cheminement doux, aménagement urbain, piste cyclable/voie verte, PMR, cour d’école, centres aquatiques, déchèterie, etc.
    Les aménagements extérieurs (privés) : voirie, stationnement, cheminement doux, rampes PMR, pour projets de type crèche, plate-forme logistique, tertiaire, logements, loisirs, etc.
    Les réseaux divers : AEP, BT, Télécom/FO, Gaz, éclairage extérieur, IRVE, etc...
    Les réseaux d’assainissement eaux usées
    Les réseaux d’assainissement eaux pluviales et les ouvrages de gestion des eaux pluviales à la parcelle
    Notice descriptive VRD pour Permis de Construire (PC), incluant le descriptif et le dimensionnement des ouvrages de gestion des eaux pluviales
    Analyse des études de sols (dans le cadre des études VRD)
    Analyse des études de pollution (dans le cadre des études VRD)
    Réemploi des matériaux / gestion des déchets
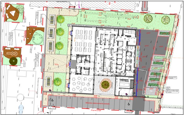
    Exemple de projet VRD 2D et 3D réalisé sur Mensura
    Plan réseaux 2D 3D - Aménagements extérieurs
    Modélisation VRD 3D - Réseaux VRD
    Suite du projet VRD 2D et 3D réalisé sur Mensura
    Vue 3D VRD 2D - Plan aménagements extérieurs
    Ouvrages EP à la parcelle 2D - Plan réseaux divers et assainissements
    Ce que nous faisons :
    Études de conception VRD couvrant plusieurs aspects importants :
    La conception des aménagements extérieurs : Altimétries, Structures, Matériaux, Mobiliers, Plantations, Signalisation, Jeux
    L’étude et la conception des réseaux divers, y compris l’éclairage extérieur
    L’étude et la conception des réseaux d’assainissement des eaux usées
    L’étude et la conception :
    Des réseaux d’assainissement des eaux pluviales
    Des ouvrages pour la gestion des eaux pluviales à la parcelle : dimensionnement selon le cahier des charges local, perméabilité du sol, contraintes du site, configuration des ouvrages (casier, structure réservoir, noue, bassin paysager)
    Détermination des altimétries projet pour une mise en forme esthétique et l’optimisation des ouvrages de gestion des eaux pluviales
    Documents VRD à fournir au PC : plans et notice VRD, note de calcul des volumes d’eaux pluviales
    Métrés et chiffrage
    Rédaction des pièces écrites : CCTP, DPGF
    Analyse des offres
    Suivi de chantier
    OPR (Opérations Préalables à la Réception) et Réception
    Logiciels utilisés : MENSURA (rendu 2D/3D - BIM), Pack Office
  • Contact

    Nos coordonnées

    Technaruelf

    7 rue du vert Buisson
    76000 ROUEN

    Tél : 06 58 41 54 54

    Email : contact@technaruelf.fr

© 2025 TECHNARUELF – Bureau d'études spécialisé en éco-construction, performance énergétique, HQE, BEPOS et Passivhaus. Tous droits réservés.

Accueil- Expertises- Missions- Contact- Mentions légales- Conditions Générales d'Utilisation
×

BIOCLIMATISME FACE AU CHANGEMENT CLIMATIQUE

Toit de chaume
Matériaux biosourcés sur une maison réhabilitée en crèche

La conception bioclimatique commence dès la recherche foncière, dès le programme, et les premières orientations du bâtiment projeté, dès les premiers traits de concepteur. La Stratégie Nationale Bas Carbone donne un cap nécessaire et cohérent avec un enjeu mondial : lutter contre le changement climatique.

Nous cherchons à conserver un confort d’été, mais aussi à rendre nos bâtiments résilients face aux intempéries qui s’accroissent en intensité et en fréquence. Le secteur du bâtiment ne peut échapper aux questionnements qui touchent désormais tous les modes constructifs.

Nouvelle illustration
Toit de chaume pour la réhabilitation en crèche

Les récents arbitrages de la RE2020 ont mis sur le devant de la scène les matériaux biosourcés. TECHNARUELF préconise déjà les produits biosourcés et/ou recyclés et réemploie les matériaux récupérés après déconstruction. Il s’agit de bioconcevoir conjointement l’enveloppe du bâti et les équipements techniques.

Au-delà de la performance, c’est une véritable vision d’avenir que nous portons : construire durablement, intelligemment, en tirant parti de ressources locales et respectueuses de l’environnement.

×

CONSEIL EN CONSTRUCTION BOIS

Construction bois
Bâtiment bas carbone à Thiberville

Avec les seuils de matériaux biosourcés exigés par les réglementations environnementales et les niveaux de labels biosourcés biogéniques, la participation de la structure bois s’impose.

Des cycles de 80 ans d’exploitation de nos forêts nous permettent d’être auto-suffisants pour construire nos bâtiments selon un modèle économique circulaire.

Techniques bois
Structure bois à Thiberville

Le modèle circulaire est basé sur les bois de masse, bois d’ingénierie et systèmes hybrides déjà usités en EU du nord: lamellé, CLT, LVL, éléments combinés solives en I…

Depuis les années 90, de nouveaux procédés augmentent les performances naturelles du bois. Les coûts baissent… pourvu que les concepteurs s’adaptent aux contingences de la construction bois, et non l’inverse.

×

CONCEPTION TECHNIQUE DES FLUIDES

Approvisionnement énergétique
Analyse énergétique - Normandie 2

Nous étudions l’approvisionnement énergétique de l’opération en analysant les opportunités du site : chauffage urbain, géothermie, biomasse, photovoltaïque…

Notre objectif est de maximiser les énergies renouvelables disponibles localement, tout en tenant compte des contraintes techniques et économiques propres à chaque projet.

Équipements techniques
Conception CVC - Normandie 2

Nos spécialistes des équipements calculent les besoins énergétiques, dimensionnent précisément les installations et sélectionnent les matériels adaptés pour garantir efficacité, durabilité et conformité réglementaire.

Ils travaillent en étroite collaboration avec les architectes, maîtres d’œuvre et entreprises pour assurer une intégration optimale des solutions techniques au sein du projet. Chaque choix tient compte des contraintes spécifiques du site, des objectifs de performance et des exigences normatives.

×

AUDIT ET ÉTUDES THERMIQUES

Audit thermique 3D
Immeubles de bureaux - Orano - La Hague (50)

Nos outils d’études et de simulation du climat futur nous permettent d’anticiper les futurs besoins depuis la RE 2020 et ses différents seuils jusqu’au niveau Passivhaus.

En saisissant le bâtiment en 3D, en simulant différents fichiers météo, prestations d’enveloppe et types d’équipements, nous évaluons les combinaisons techniques compatibles avec les objectifs de résilience et les contraintes budgétaires fixés par la maîtrise d’ouvrage.

Résultats audit thermique
Analyse des scénarios – Études thermiques

Ces audits permettent de hiérarchiser les options de conception selon leur impact énergétique, leur coût, et leur capacité à répondre aux enjeux climatiques à long terme. Ils facilitent le dialogue avec les décideurs en apportant une vision claire et chiffrée des performances attendues du bâtiment dans différents contextes climatiques futurs.

Cette approche permet d’orienter les choix techniques vers des solutions robustes, adaptées aux futurs aléas climatiques et compatibles avec les objectifs de sobriété énergétique.

×

INGÉNIERIE ENVIRONNEMENTALE ET ÉNERGIES BAS CARBONE

Ingénierie environnementale
Intégration des exigences environnementales dès la conception

Application des certifications de la réglementation environnementale en matière de carbone, de gestion de l’énergie (décret B.A.C.S) et de réemploi des matériaux (décret P.E.M.D).

Il s’agit d’appliquer les recommandations européennes, de l’État (ADEME), régionales (BDF) et d’organismes tels que le CERQUAL ou CERTIVEA, BBE+, HQE Bâtiment Durable, BREEAM.

Labels environnementaux
Valorisation des performances environnementales par les labels

Notre démarche s’appuie sur une veille réglementaire constante et une intégration proactive des exigences normatives dès les phases de conception.

Elle garantit la conformité des projets tout en valorisant leur performance environnementale auprès des labels les plus exigeants du secteur.

×

ACCOMPAGNEMENT JURIDIQUE ET TECHNIQUE DES MARCHÉS PUBLICS

Accompagnement juridique
Conseil juridique et marchés publics

Selon le code des marchés publics et les recommandations du pouvoir adjudicataire, il s’agit pour notre économiste de respecter les budgets d’investissement et/ou d’adapter les prestations générales aux priorités du Maître d’ouvrage.

Fort de la compétence technique de notre bureau d’études pluridisciplinaires, nous intégrons la notion de coût global afin de réduire durablement le budget de fonctionnement : entretien, charges énergétiques et coûts d’exploitation.

Stratégie d’investissement immobilier
Bilan prévisionnel d’opération publique

L’expérience acquise auprès de grands groupes du BTP permet à TECHNARUELF d’apporter un conseil stratégique en investissement immobilier, montage et passation des marchés travaux (CES, EG, MGP, CREM…).

Nous accompagnons également l’élaboration des bilans prévisionnels d’opérations publiques (TDC) et/ou privées.

×

CERTIFICATIONS ET LABELS

Certifications et labels
Logements passifs - Ecoquartier Luciline (76)

Application des certifications des référentiels de Haute Qualité Environnementale au-delà de la réglementation en observant différentes obligations : HQE, BREEAM, BDF, FEDER…

D’autres attentes peuvent être proposées par des labels BIOSOURCES, OSMOZ, BIODIVERCITY…

×

VRD : VOIRIES, RÉSEAUX DIVERS ET AMÉNAGEMENTS

Modélisation 3D VRD
Modélisation 3D et gestion des contraintes

Avec les difficultés croissantes de recherches foncières (ZAN, zones inondables, pollution…) et les contraintes croissantes (géologiques, argile gonflante, PLUI…) les enjeux de gestion des EP avec la police de l’eau, de voiries perméables, des terrassements de terrains plus accidentés, de réemploi de matériaux et d’hydraulique douce exigent de numériser la topographie en 3 Dimensions.

Végétation résistante
Végétation adaptée au climat

Une grande maîtrise technologique de la modélisation (logiciel MENSURA) et l’expérience technique permettent de fiabiliser les choix adéquats et les budgets.

Nos spécialistes préconisent des végétaux résistants aux nouvelles conditions climatiques, ni allergènes, ni envahissants, ils demandent peu d’eau pluviales et apportent des baisses de températures au pied des immeubles lors des températures caniculaires. Ces protections naturelles contre les îlots de chaleur sont les plus performants grâce à l’évapotranspiration végétale et les flux d’air qu’elles génèrent.